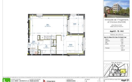
Idéalement situé dans un quartier dynamique et recherché, à proximité immédiate des facultés, du centre-ville, des transports en commun et des commerces, découvrez ce superbe appartement T2 d’environ 41,74 m2, au sein de la résidence neuve ELENA, située 6 rue Dolet à Clermont-Ferrand.
Situé au 4ième et dernier étage avec ascenseur, cet appartement lumineux offre un cadre de vie agréable et moderne comprenant : entrée avec placard, chambre, salle d’eau avec WC, cuisine équipée (éléments, hotte, plaque) ouverte sur séjour donnant accès sur belle terrasse d’environ 13,12m2 avec jardinière de 7,00m2.
Garage privatif n06.
Les charges mensuelles comprennent la provision pour l’eau, l’entretien des parties communes.
Disponible le 1er juin 2026.









































