540 € + 60 € de charges
See all 15 photos
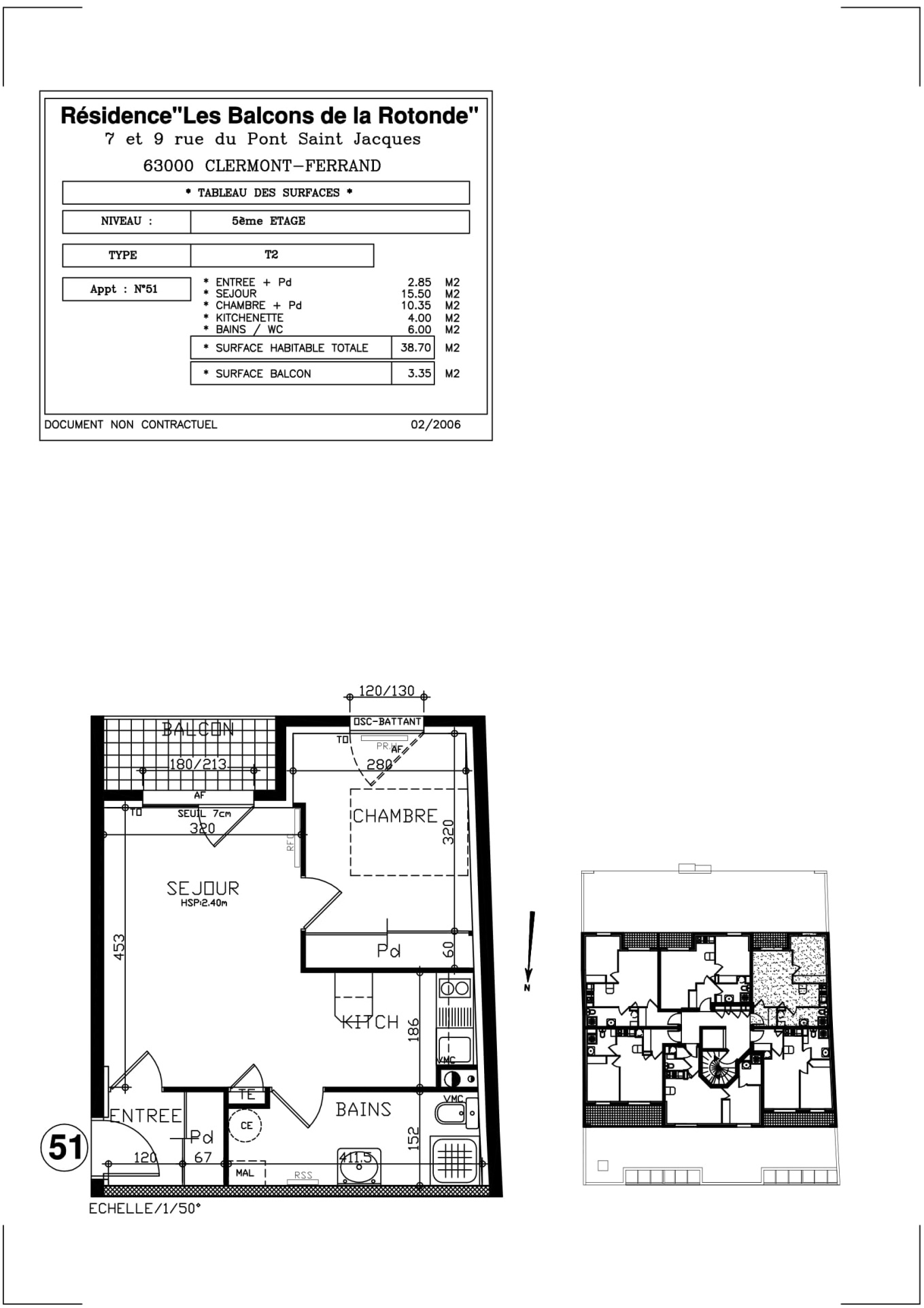
A deux pas des facultés, dans résidence de standing construite en 2009 Les Balcons de La Rotonde sise 7/9 rue du Pont de St Jacques à Clermont-Ferrand; T2 n51 d’environ 38.70 m2 au 5ème étage avec ascenseur.
Il comprend: hall avec placard, cuisine équipée (éléments, plaque, hotte et réfrigérateur/top) ouverte sur séjour, chambre avec placard, salle d’eau avec WC.
Balcon d’environ 3.35 m2 expo SUD.
Box n20 privé et sécurisé.
Les charges mensuelles, avec régularisation annuelle, comprennent la provision pour l’eau, la taxe d’enlèvement des ordures ménagères et l’entretien des parties communes.
Disponible de suite.
Address: 7/9 rue du Pont Saint Jacques
City: Clermont-Ferrand
Zip: 63000
Country: France
Open In Google Maps
Property Id : 720
Price: 540 € + 60 € de charges
Property Size: 38.78 m2
Rooms: 2
Bedrooms: 1
Energy class: C
Date de disponibilité: 2026-02-20
Référence: T2 n51 Les Balcons de la Rotonde
Moyen de chauffage: INDIVIDUEL
Année de construction: 2007
Emissions de Gaz à Effet de Serre (GES): A
Numéro d'étage: 5
Nombre d'étage: 6
Type de chauffage: RADIATEUR
Type d'energie: ELECTRIQUE
Charges mensuelles: 60 €
Honoraires agence: 348 € dont 116 € d'état des lieux
A+
A
B
Your energy class is C
C
D
E
F
G
H
Contactez moi
Schedule a showing?




























































