515 € + 80 € de charges
See all 12 photos
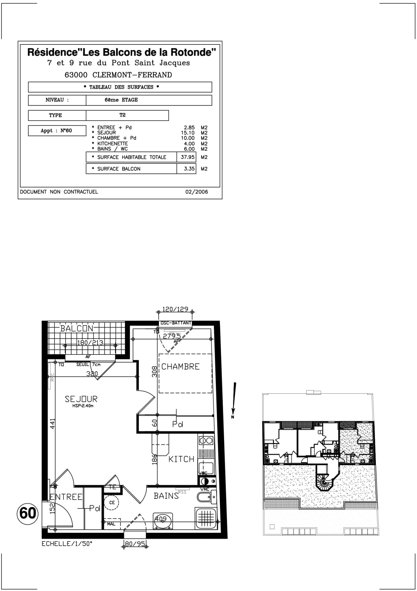
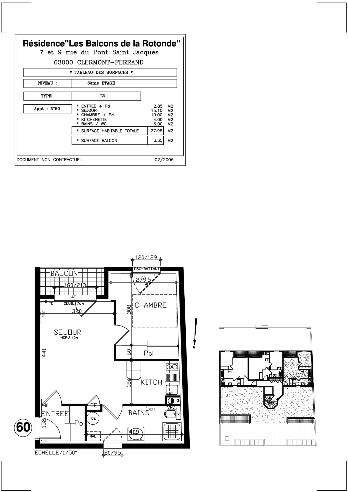
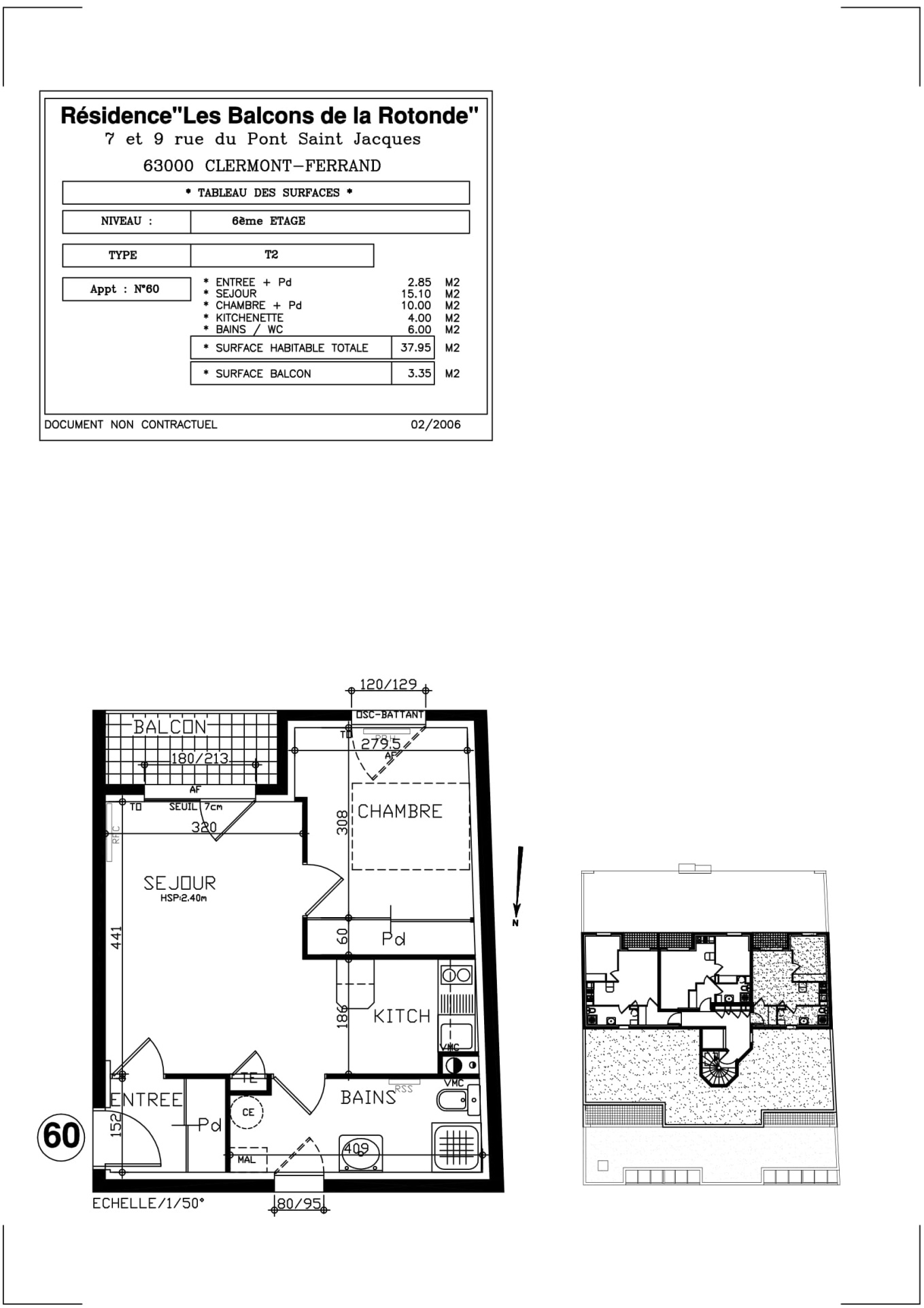
En cours de rénovation; A deux pas des facultés, dans résidence de 2009 Les Balcons de la Rotonde sise 7/9 rue du Pont de St Jacques à Clermont-Ferrand; T2 d’environ 37.95 m2 habitables au 6ème et dernier étage avec ascenseur.
Il comprend une entrée avec placard, cuisine équipée (éléments, hotte, plaque et frigo top) ouverte sur salon/séjour avec accès sur balcon d’environ 3.35 m2 avec vue dégagée, chambre avec placard, salle d’eau avec WC.
Box privatif et sécurisé n60.
Les charges mensuelles, avec régularisation annuelle, comprennent la provision pour l’eau, la taxe d’enlèvement des ordures ménagères et l’entretien des parties communes.
L’appartement entièrement repeint.
Disponible de suite.
Address: 7/9 rue du Pont Saint Jacques
City: Clermont-Ferrand
Zip: 63000
Country: France
Open In Google Maps
Property Id : 867
Price: 515 € + 80 € de charges
Property Size: 37.95 m2
Rooms: 2
Bedrooms: 1
Energy class: D
Date de disponibilité: 2026-03-05
Référence: T2 n60 Les Balcons de la Rotonde
Moyen de chauffage: INDIVIDUEL
Année de construction: 2009
Emissions de Gaz à Effet de Serre (GES): B
Numéro d'étage: 6
Nombre d'étage: 6
Type de chauffage: RADIATEUR
Type d'energie: ELECTRIQUE
Charges mensuelles: 80 €
Honoraires agence: 345 € dont 115 € d'état des lieux
A+
A
B
C
Your energy class D
D
E
F
G
H
Contactez moi
Schedule a showing?

























































