780 € + 95 € de charges
See all 8 photos
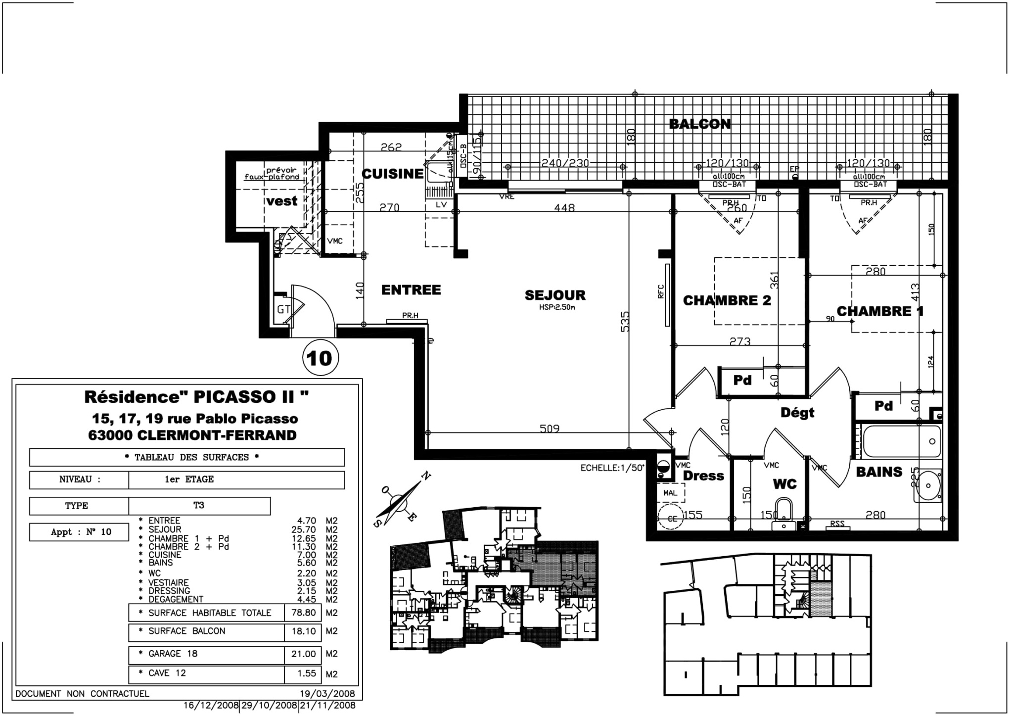
A deux pas des Cézeaux, du tramway et du Parc du Creux de l’enfer, dans résidence de 2010 Picasso II sise 17 rue Pablo Picasso à Clermont-Ferrand; agréable T3 n10 d’environ 79,05m2 habitables.
Il comprend : entrée avec vestiaire, cuisine équipée (éléments, plaque et hotte) ouverte sur séjour avec accès sur superbe balcon d’environ 18.10 m2, dégagement avec buanderie, deux chambres avec placard accédant également au balcon, salle de bains et WC séparé.
Les charges mensuelles, avec régularisation annuelle, comprennent la provision pour l’eau, la taxe d’enlèvement des ordures ménagères et l’entretien des parties communes.
Garage n12 et cave n12.
Disponible le 23 juin 2026.
Property Id : 664
Price: 780 € + 95 € de charges
Property Size: 79.05 m2
Rooms: 3
Bedrooms: 2
Energy class: C
Date de disponibilité: 2026-06-23
Référence: T3 n10 Picasso II
Moyen de chauffage: INDIVIDUEL
Année de construction: 2010
Emissions de Gaz à Effet de Serre (GES): A
Numéro d'étage: 1
Nombre d'étage: 4
Type de chauffage: RADIATEUR
Type d'energie: ELECTRIQUE
Charges mensuelles: 95 €
Honoraires agence: 869 € dont 237 € d'état des lieux
A+
A
B
Your energy class is C
C
D
E
F
G
H
Contactez moi
Schedule a showing?





















































