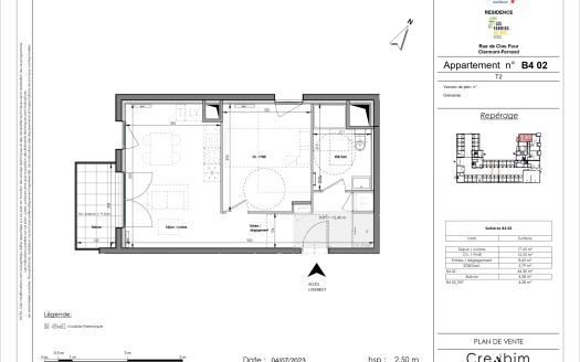
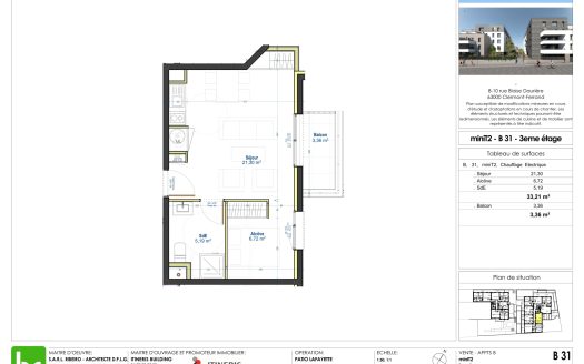
Située dans le quartier Lafayette, à proximité immédiate des commerces, transports et services, T3 d’environ 63,06m2 habitables au 5ième étage de la résidence neuve ‘Prisme’ sise 129 Boulevard Lafayette à Clermont-Ferrand.
Il comprend : une entrée, cuisine équipée (éléments, hotte, et plaque) ouverte sur séjour d’environ 25,85m2 avec accès sur une loggia 12,20m2, 2 chambres dont une placard, salle d’eau,et WC séparé.
Garage privatif n45
Les provisions pour charges mensuelles comprennent l’entretien des parties communes, la taxe d’ordures ménagères, l’entretien de la chaudière et la provision d’eau froide.
L’immeuble dispose d’un espace de coworking, d’un compost partagé ainsi qu’une boîte à colis connectée.
Disponible de suite.
A+
A
B
C
D
E
F
G
H


















































