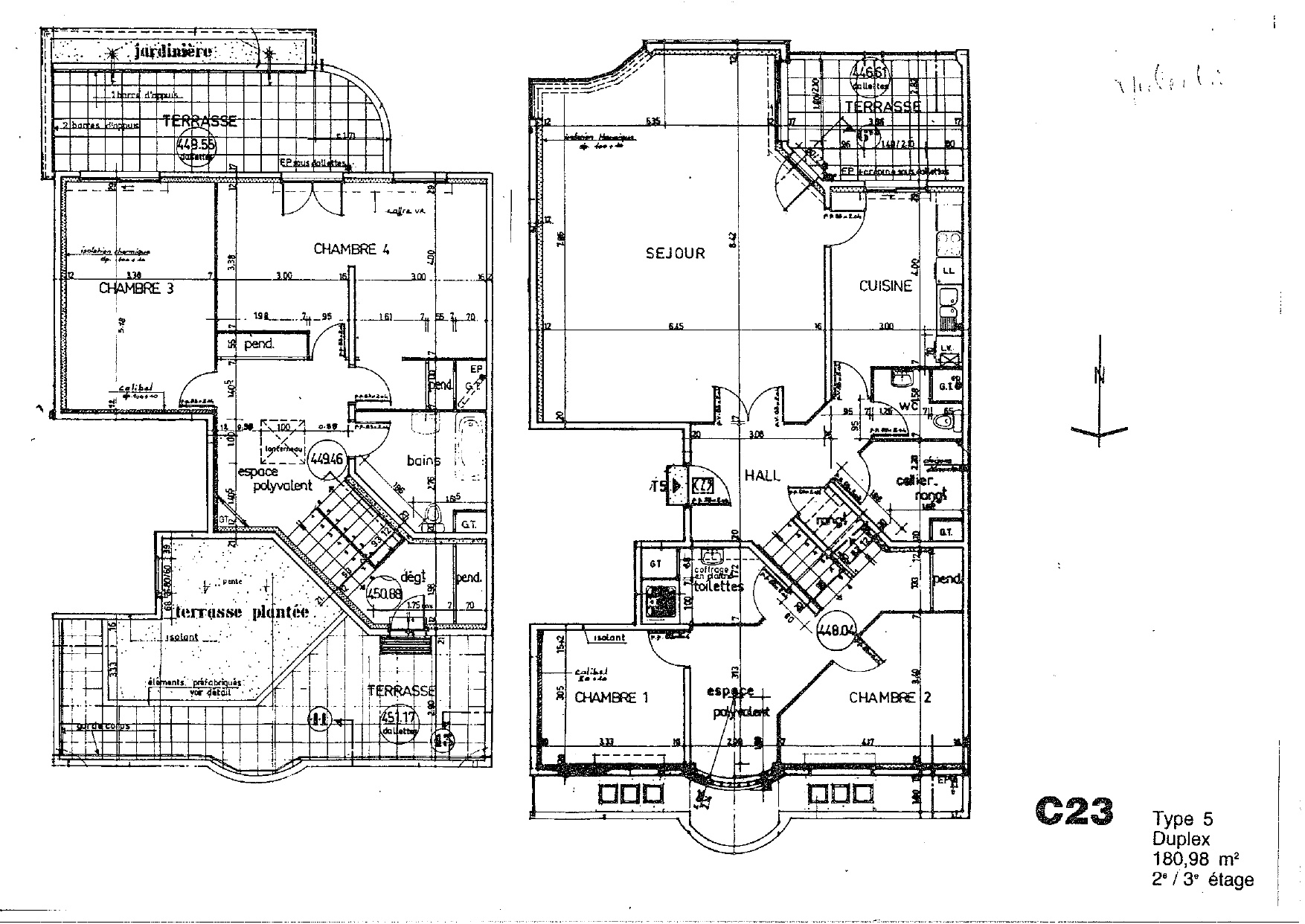
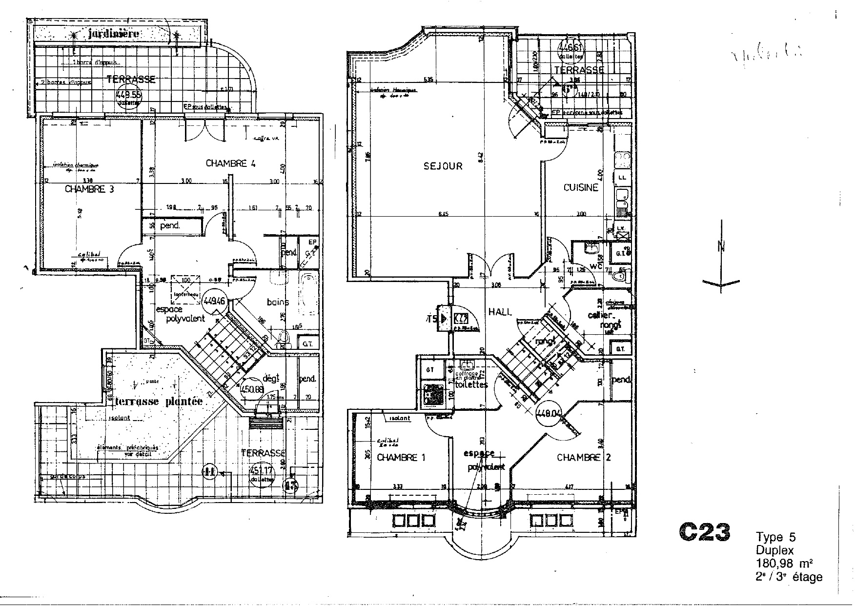
À 5 minutes du centre-ville de Chamalières, au sein de la résidence Babylone, située 5 allée des Carrières, dans un environnement calme et résidentiel avec piscine, bel appartement T5 en duplex d’environ 180,98 m2 habitables.
Le logement se compose au 2ième niveau: d’une entrée avec rangements ouvrant sur une vaste pièce de vie lumineuse, d’une cuisine fermée et aménagée (meubles, hotte et plaque) avec accès à une terrasse, de deux chambres, d’une salle d’eau, de WC séparés ainsi que d’un espace polyvalent avec placard.
Au 3ième et dernier étage, un espace polyvalent avec puits de lumière et rangements donnant accès à une terrasse sur les toits sans vis à vis, deux chambres, dont une chambre double avec de placards et accès sur une troisième terrasse, salle de bains avec WC.
Le bien dispose également d’un garage privatif nG9, dont une en sous-sol, ainsi que d’une cave privative.
Les charges mensuelles comprennent la provision pour l’eau, la taxe d’enlèvement des ordures ménagères, l’entretien des parties communes ainsi que le contrat d’entretien de la chaudière et de la robinetterie.
Disponible de suite.
A+
A
B
C
D
E
F
G
H

















