580 € + 55 € de charges
See all 6 photos
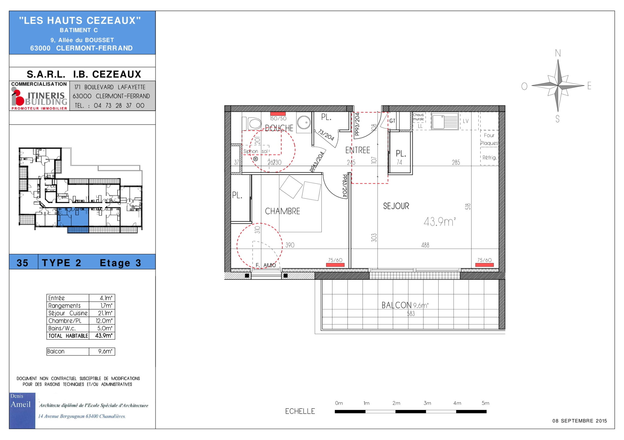
Dans résidence de standing basse consommation (RT 2012) construite en 2017 à deux pas des Cézeaux et du tramway, Résidence Les Hauts Cézeaux sise Bâtiment C – 9 Allée du Bousset à Clermont-Ferrand; agréable T2 n35 d’environ 43.90 m2 au 3ème étage avec ascenseur.
Il comprend entrée avec placard, cuisine aménagée (éléments, hotte, plaque) ouverte sur séjour, chambre avec placard et salle d’eau avec WC.
Balcon d’environ 9.6 m2.
Garage sécurisé nC35.
Les charges mensuelles, avec régularisation annuelle, comprennent la provision pour l’eau, la taxe d’enlèvement des ordures ménagères et l’entretien des parties communes.
Dispositif Pinel.
Disponible le 30 décembre 2025.
Property Id : 588
Price: 580 € + 55 € de charges
Property Size: 43.90 m2
Rooms: 2
Bedrooms: 1
Energy class: B
Date de disponibilité: 2025-12-31
Référence: T2 n35C Les Hauts Cézeaux
Moyen de chauffage: INDIVIDUEL
Année de construction: 2017
Emissions de Gaz à Effet de Serre (GES): C
Numéro d'étage: 3
Nombre d'étage: 5
Type de chauffage: RADIATEUR
Type d'energie: GAZ
Charges mensuelles: 55 €
Honoraires agence: 395 € dont 132 € d'état des lieux
A+
A
Your energy class is B
B
C
D
E
F
G
H
Contactez moi
Schedule a showing?













































