Description
ADRESSE
30 Place Henri Dunant, 63000 Clermont-Ferrand
LIVRAISON
2027
LA RÉSIDENCE
SITUATION
LA RÉSIDENCE
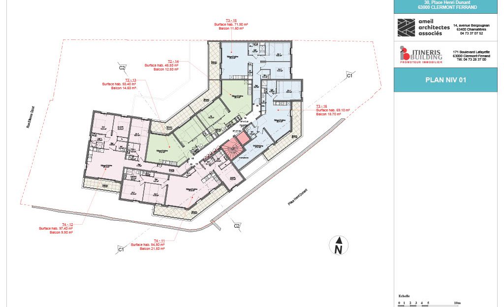
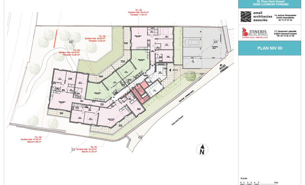
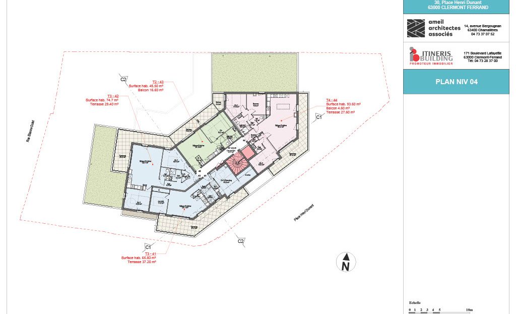
La résidence HEIDEN sera composée de 27 logements, du T2 au T4, distribués sur un rez-de-chaussée et 4 étages.
SITUATION
Idéal pour les étudiants et jeunes actifs, proche des commerces, transports, facultés et à 10 min du centre-ville en tramway.
- Perspectives
- Plan de Situation
- Plan Masse
- Elévations
- Coupes
- Travaux
Plans
- Niveau -1
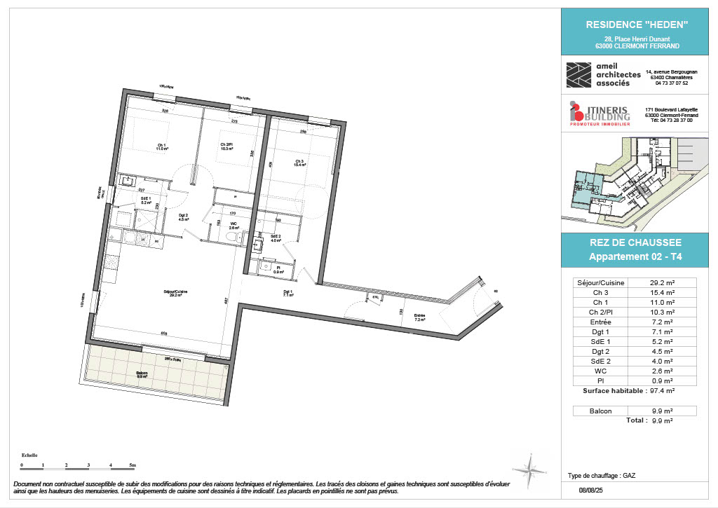
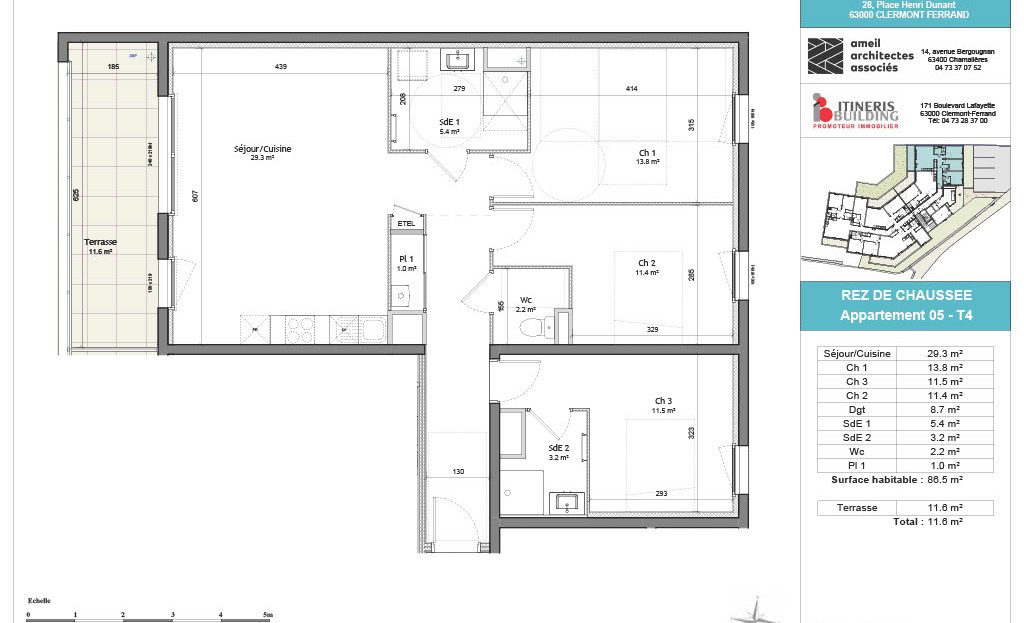
- Rez de chaussée
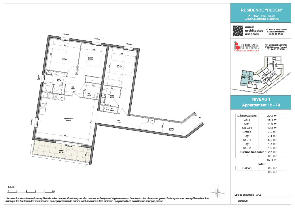
- 1er étage
- 2ème étage
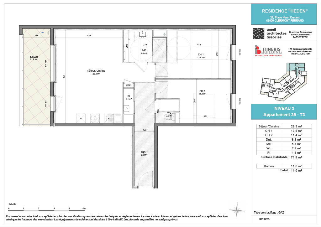
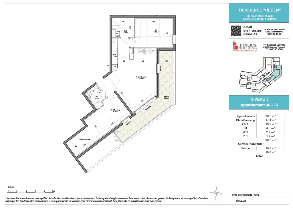
- 3ème étage
- 4ème étage
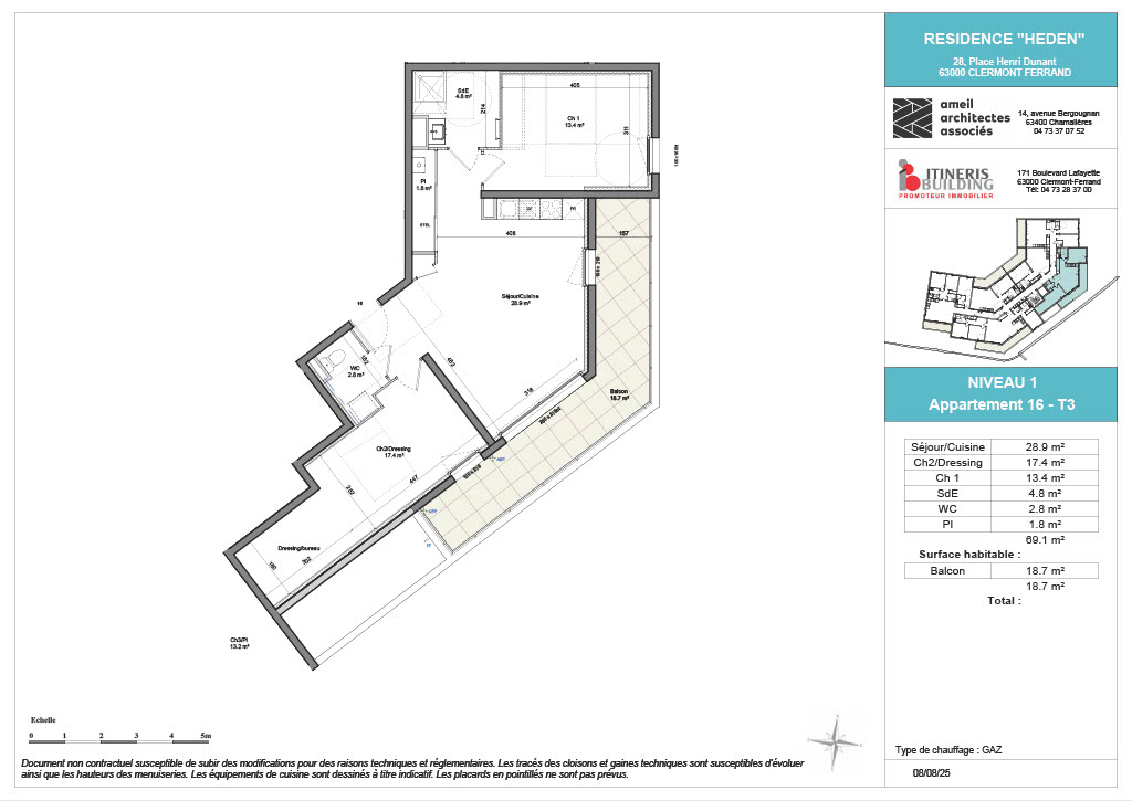
- Appartement n°01 - T4 - 94.3m²
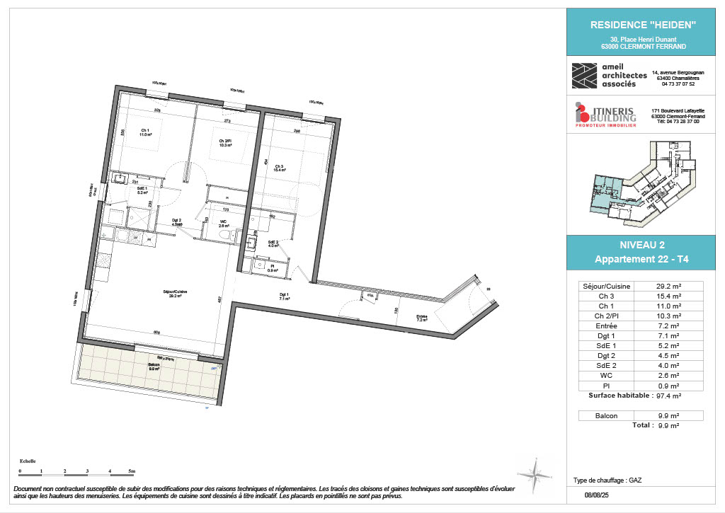
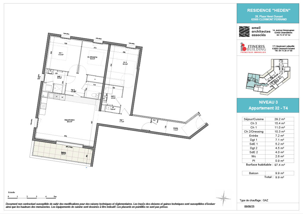
- Appartement n°02 - T4 - 97.4m²
- Appartement n°03 - T2 - 50.4m²
- Appartement n°11 - T4 - 94.9m²
- Appartement n°12 - T4 - 97.4m²
- Appartement n°13 - T2 - 50.4m²
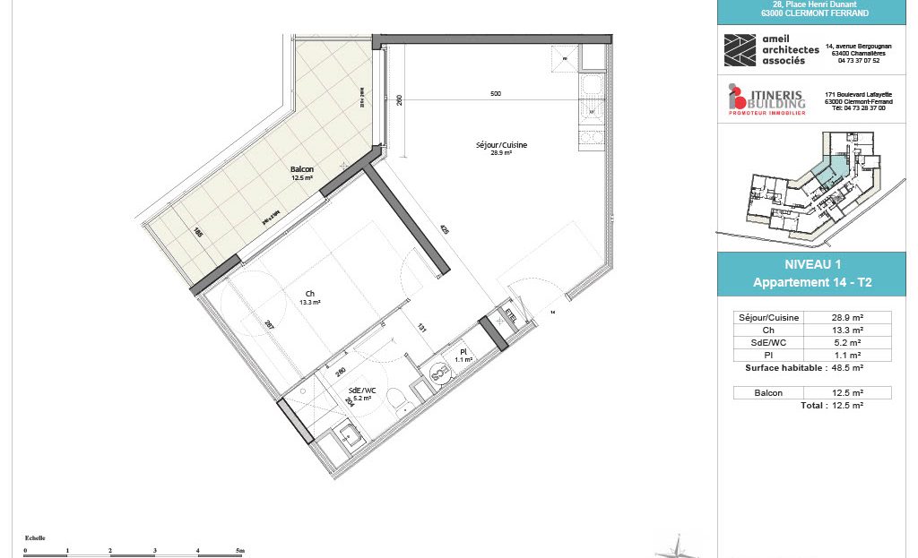
- Appartement n°14 - T2 - 48.5m²
- Appartement n°21 - T4 - 95.0m²
- Appartement n°22 - T4 - 97.4m²
- Appartement n°23 - T2 - 50.4m²
- Appartement n°24 - T2 - 48.5m²
Plus d’informations
Adresse: 30, Place Henri Dunant
Ville: Clermont-Ferrand
Quartier: Place Henri Dunant
Région: Auvergne-Rhône-Alpes
Code postal: 63000
Pays: France
Ouvrir dans Google Maps
ID de propriété: 45272
: Array
Disponible le: 2022-12-31
Grande terrasse
Parking
Proche du tramway
Terrasse
Résidence Heiden
Contactez moi
Préférences de rendez-vous










































